3D-ARCHI.DE

Klare Prinzipien

2d-zeichnungen & cad dokumentation

Sie benötigen 2D-Zeichnungen, die juristisch belastbar sind und von jedem Fachplaner sofort weiterverarbeitet werden können. Wir übernehmen Ihr CAD/DWG-Archiv und liefern Grundrisse, Aufmaßunterlagen sowie grafische Wohnungsblätter, die Vertrieb, Bauamt und Banken akzeptieren.

360°Panoramen & Rundgänge
48 hReaktion auf Korrekturen
DE / PLZweisprachig

2d-zeichnungen für Bauträger & Architekten

Unsere 2D-Zeichnungen verbinden Präzision aus dem Architektur-Atelier mit präziser CAD-Dokumentation. Sie erhalten nicht nur DWG/DXF-Dateien, sondern komplette Pakete aus CAD-Layern, Prospekthaftungs-Notizen und klaren Übergaben für Verkauf, Bauamt und Banken. So bleiben Ihre Projekte auditierbar und Vertriebsteams verfügen über Unterlagen, die sich sofort versenden lassen.

Ob grafische Wohnungsblätter, Aufmaßprotokolle oder Bestandspläne – jede 2d-zeichnungen Lieferung folgt SLA 48h für Änderungen und dokumentiert, welche Norm (DIN 4109, DIN 18040, GEG) in welchem Blatt berücksichtigt wurde. Damit reduzieren Sie Rückfragen und beschleunigen die Zusammenarbeit zwischen Vertrieb, Planung und Behörden.

Wir kümmern uns auch um internationale Anforderungen. Zweisprachige 2D-Zeichnungen (DE/EN oder DE/PL) sichern Joint-Ventures ab, während jede Leistung mit Portfolio-Referenzen verbunden ist. Ihr Team oder Ihr Investor kann so jederzeit sehen, welche Qualität zu welchem Preis geliefert wird.

  • Klare Layerstruktur: eindeutige Benennung der Zeichnungsebenen für Technik, Verkauf und Visualisierung.
  • Kontextbilder, damit Aufmaß- und Bestandsunterlagen vor Ort nachvollzogen werden können.
  • Versionierung für Vorstand und Vertrieb – jedes PDF enthält QR-Links zu Portfolio und Kontaktformular.
  • Archivierung auf sicheren Servern, sodass 2d-zeichnungen jederzeit erneut exportiert werden können.

Angebot für Bauträger

Wir unterstützen Bauträger in jeder Phase des Verkaufs – besonders dann, wenn 2d-zeichnungen den Ausschlag geben. Wir bereiten Konzepte vor, die städtebauliche Ansätze erklären, verfeinern Materialdetails und liefern Grundrisse, die Verkäufer sofort an Kunden senden können. Dank der abwechselnden Anordnung von Text und Grafik zeigen wir die entscheidenden Vorteile der Investition auf einfache Weise.

Jedes Paket kombinieren wir mit Online-Beratungen, wodurch wir schnell auf Anmerkungen von Investoren, Wohnungseigentümergemeinschaften oder Marketingabteilungen reagieren können. Wir können parallel an mehreren Gebäuden arbeiten und diese etappenweise umsetzen – vom Einfamilienhaus bis zum Wohnviertel mit mehreren Gebäuden – und halten jede Zeichnungsserie in Änderungsprotokollen fest.

01

Komplettes Ökosystem

Ein Team ist verantwortlich für Visualisierungen, 3D-Grundrisse, Animationen und Verkaufsunterlagen – so vermeiden wir stilistische Abweichungen.

02

Prozess unter Kontrolle

Wir arbeiten in Sprints mit einer klaren Korrekturliste und einem Bericht für den Projektmanager nach jeder Runde.

03

Skalierung der Investition

Wir entwickeln Materialien für weitere Etappen problemlos weiter – von kleinen Wohnsiedlungen bis hin zu mehrphasigen Stadtquartieren.

2d-zeichnungen technische CAD Zeichnung
1

TECHNISCHE CAD-ZEICHNUNGEN

Wir wandeln Skizzen, PDFs oder Bestandsunterlagen in hochpräzise CAD-Dateien (DWG/DXF) um. Diese dienen als Grundlage für Architekten, Fachplaner und die Bauausführung. Jede Linie wird nach aktuellen Standards gezeichnet, um maximale Kompatibilität zu gewährleisten.

  • Digitalisierung von Bestandsplänen,
  • Anpassung an deutsche und polnische Zeichenstandards,
  • Erstellung von Schnitten, Ansichten und Detailzeichnungen.
2

BAU- & AUSFÜHRUNGSPLÄNE

Wir unterstützen bei der Erstellung von Planunterlagen für die verschiedenen Leistungsphasen. Ob für Genehmigungsverfahren oder die direkte Umsetzung auf der Baustelle – wir liefern die notwendige grafische Zuarbeit, damit alle Beteiligten fehlerfrei arbeiten können.

  • Entwurfs- und Genehmigungsplanung,
  • Detaillierte Ausführungsplanung,
  • Einzeichnung von Maßen, Materialien und technischen Hinweisen.
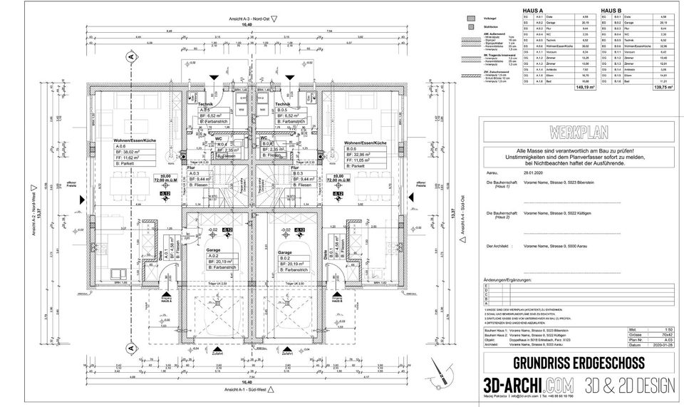
Bauplan Ausführung
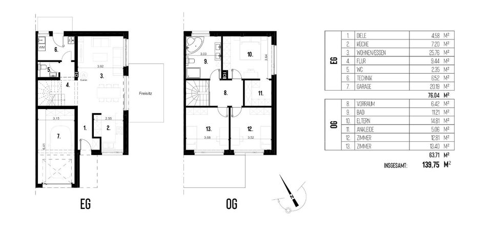
Grafisches Wohnungsblatt
3

GRAFISCHE WOHNUNGSBLÄTTER

Für den Verkauf benötigen Endkunden leicht lesbare, ästhetische Grundrisse. Wir bereiten technische Pläne grafisch auf, ergänzen beispielhafte Möblierungen und berechnen Flächenangaben nach den gewünschten Normen für Ihre Exposés.

  • Hochwertige 2D-Grundrisse mit Texturen und Farben,
  • Erstellung kompletter Verkaufsmappen (Wohnungs-Exposés),
  • Flächenberechnungen und Raumbeschriftungen.
4

AUFMASS & BESTANDSUNTERLAGEN

Bei Sanierungen oder Revitalisierungen ist ein präziser Ist-Zustand entscheidend. Wir erstellen detaillierte Bestandspläne auf Basis von Aufmaßen oder Punktwolken, um eine solide Planungsgrundlage für den Umbau zu schaffen.

  • Architektonische Inwentarisierung,
  • Präzise Dokumentation des Bestands in 2D,
  • Grundlage für Sanierungs- und Umbauprojekte.
Aufmaß Bestand

Dateiformate & Standards

Wir liefern Daten in allen gängigen Branchenformaten:

  • DWG / DXF (AutoCAD kompatibel)
  • PDF (Druckfertig & Web-optimiert)
  • SVG / AI (Vektorgrafiken für Grafikdesigner)
  • Vorbereitung für 3D-Modellierung (Präzise 2D-Grundlagen)

Flexibilität für Ihr Team

Unsere 2D-Abteilung agiert als verlängerter Arm Ihres Planungsbüros. Wir passen uns an Ihre Layer-Strukturen, Strichstärken i Plot-Stile an, damit sich unsere Zeichnungen nahtlos in Ihre Projektmappen integrieren.

Kurzfristige Aktualisierungen, zweisprachige Varianten und sichere Dateiübergabe für Remote-Teams.

Arbeitsweise

Jede CAD-Zeichnung durchläuft eine interne Qualitätsprüfung, bevor sie an den Kunden übermittelt wird. Wir legen Wert auf saubere Dateistrukturen, damit Ihre Fachingenieure ohne Nachbearbeitung direkt weiterplanen können.

Wir arbeiten vollständig remote und übernehmen Aufträge in ganz Deutschland, der Schweiz und Österreich – inklusive zweisprachiger Beschriftungen und direktem Austausch per Videocall.